【AT】消防新规出台后天津的8个住宅核心筒

发表于 讨论求助 2023-05-18 23:00:13

点击“此处”了解医疗养老论坛详情


点击“此处”了解地下空间开发会议详情


以下来源:地产设计师。


一、剪刀梯交通核构成要素

渐变背景内容


渐变背景内容


135编辑器

操作方便才是硬道理


135编辑器

操作方便才是硬道理


135编辑器

操作方便才是硬道理


短标题


剪刀梯交通核构成要素主要有:楼梯、电梯、楼/电梯前室、公共走道、候梯厅、设备管井、加压送风井等。对于这些交通核构成要素,《建筑设计防火规范》,《住宅建筑规范》等都做了较为明确的尺寸规定。然而新的消防规范实施之后,随着个别条文的改动和新要求的出现,交通核的布置也必然随之产生一些调整和变化。


那么问题来了:规则改变后,我们应该选择哪种交通核布置方式,以便获得一个较省的交通空间、从而得到一个较高出房率呢?

下面以天津市为例,对剪刀梯交通核典型布置案例详作讨论。


二、相关规范

渐变背景内容


渐变背景内容


135编辑器

操作方便才是硬道理


135编辑器

操作方便才是硬道理


135编辑器

操作方便才是硬道理


短标题


除了改版之前的防火规范(此文不再赘述),对剪刀梯交通核各类规定之外,新版防火规范增加的设计要求有:

合用前室:《防火规范》5.5.28,楼梯间的共用前室,与消防电梯合用时,短边尺寸≥2.4m;

前室使用面积≥12㎡;


此规定使传统剪刀梯交通核“三合一”前室的面积增加较多,下面通过案例比较,以相关规范规定最小尺寸、相同户型条件为前提,以54米以上剪刀梯交通核(两梯四户)为研究对象做详细对比说明。

注:以下统计面积均为同等条件下交通核部分的轴线面积。


三、案例比较

渐变背景内容


渐变背景内容


135编辑器

操作方便才是硬道理


135编辑器

操作方便才是硬道理


135编辑器

操作方便才是硬道理


短标题


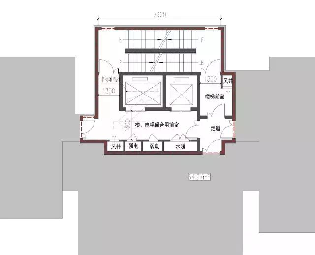
1、 传统三合一前室扩大

解析:传统三合一前室侯梯厅,进深尺寸满足无障碍尺度(1.8m),其他走道尺寸满足规范(1.2m)即可。新规范实施后,短边尺寸≥2.4m,根据三合一前室的特殊性,两部楼梯间及前室应分别设置独立的加压系统(风井)。综上所述,单纯短边尺寸扩大导致交通面积骤增,统计上图1轴线面积73.54㎡。(此处按照天津市规范设计,其他区域请自行修改。)


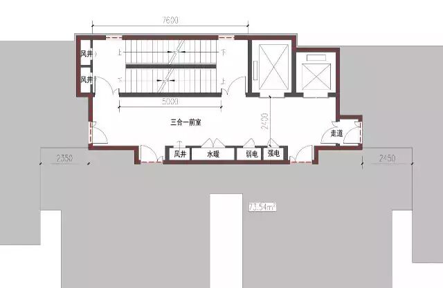
2、两部电梯单独置于一侧

解析:两部电梯置于走到一侧的做法,使得侯梯厅与楼梯前室部分走道重合,从而减少了部分交通面积,与此同时,优化管井的布置可同时实现侯梯厅的采光等舒适性要求。然而此种交通核仍旧属于三合一前室类型,即加压送风需分别设置(天津市规范要求)。统计上图2轴线面积65.41㎡。


3、横向楼梯与纵向电梯水平组合布置方式一

解析:此种交通核布置方式的特点是不再属于三合一前室,因此只需设置楼梯前室风井,其他走道满足基本尺寸需求便可。同时消防前室空间相对独立,并满足自然采光通风等需求,舒适度尚可。统计上图3轴线面积68.55㎡。


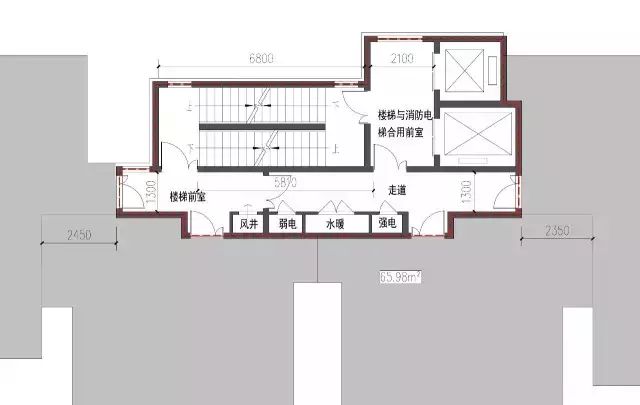
4、横向楼梯与纵向电梯水平组合布置方式二

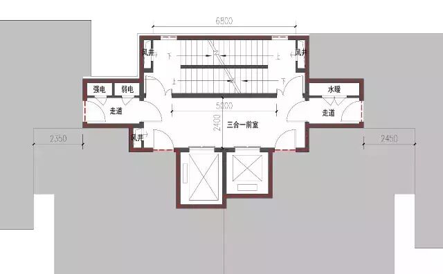
解析:此种交通核布置方式为相对于3而言,区别是电梯与之为镜像关系。它的特点是一部疏散楼梯与一部消防电梯合用一个前室,摆脱了楼梯两个疏散口之间的5m间距的限制,从而使楼梯面宽方向上得以缩减至最小值。统计上图4轴线面积65.98㎡。


5、横向楼/电梯垂直组合布置方式

解析:此类交通核的特点是所占面宽小,进深大,分楼梯前室和楼电梯合用前室,有良好的采光通风条件。缺点是同等条件下走道费面积较多。统计上图5轴线面积70.75㎡。


6、纵向楼/电梯水平组合布置方式

解析:楼电梯合用前室纵向布置,有较好的采光通风条件,同时面宽较小的条件下,也为户型设计带来较大灵活型,走道可自然实现通风条件而省略所有的加压送风管井,舒适性佳。缺点是同等条件下走道费面积较多。统计上图6轴线面积69.53㎡。


以上可以看出,在两梯四户前提条件下,交通核2、4在统计面积中优势明显,那么其它交通核是否该一票否决呢?

以下将前提条件改为两梯三户,相对占据面宽较小的5、6两类剪刀梯交通核的面积统计如下:


7、横向楼/电梯垂直组合布置方式------两梯三户


8、纵向楼/电梯水平组合布置方式------两梯三户

总结:以上列举各类典型剪刀梯交通核案例及分析,旨在说明在新规范条件下,须转变一定的设计思路,对比而非机械性的照搬设计要求,方可找到解题答案。在本案研究中 ,“哪种交通核最省”仅是一道命题,而非一道是非题,本案提供的设计案例实为参考,此外还需考虑户型条件、舒适度、实用性,条件转换等各类条件,灵活变通,找出最优解,才能找出专属于你的“最省交通核”!

=====================

《建筑技艺》近期活动:

10月23-24日北京:"2015技艺成就建筑之美年会",崔愷院士主持,张雷、张利、崔彤、陈雄、汪恒、桂学文、冯正功、查金荣、戎武杰、赖军、汪克、马泷、杨明、景泉等知名建筑师精彩演讲点击此处了解详情


《建筑技艺》微信历史信息检索

点击下方“阅读原文”可查看“建筑技艺微信历史信息总目录”,并可进行关键词搜索。

=====================

关于《建筑技艺》

《建筑技艺》(AT)前身为《建筑技术及设计》,创刊于1994年,隶属于中国建筑设计研究院,崔愷院士任编委会主任。

推广合作电话:010-57368773,307926062@qq.com


重要启事

《建筑技艺》最新推出《建筑幕墙》杂志和微信,关注幕墙技术的小伙伴可以添加关注微信号BCWjournal,或扫一扫识别以下二维码,可快速关注"BCW建筑幕墙杂志"微信。



发表
26906人 签到看排名